- Thuis
- Lago Jardín II
- 330,000 €
Torrevieja, Alicante
Lago Jardín II
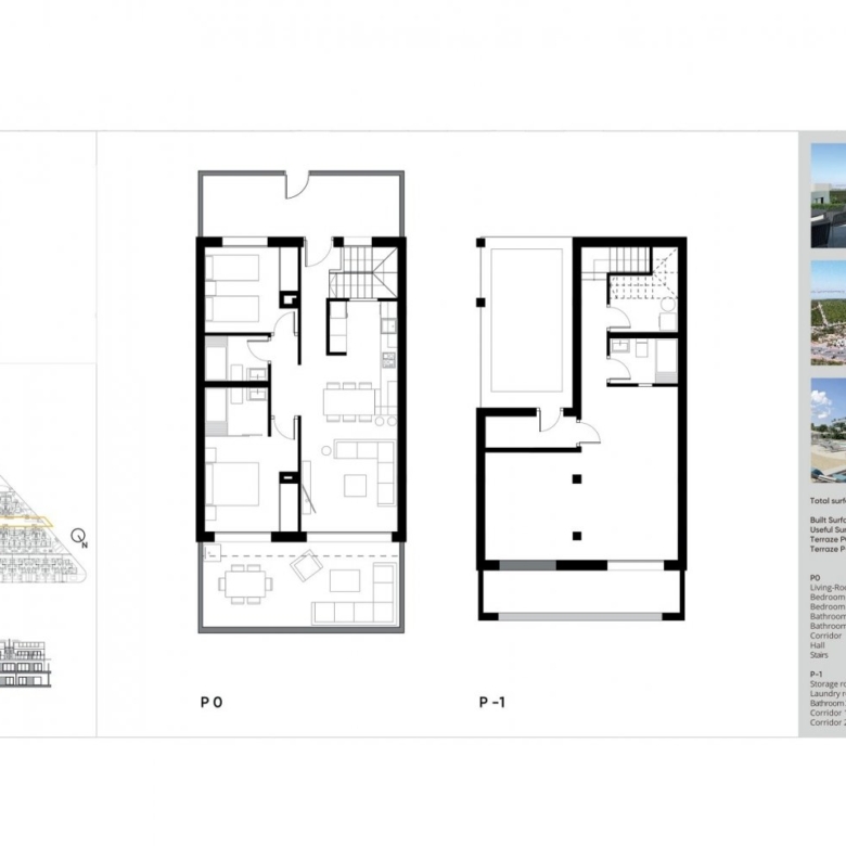
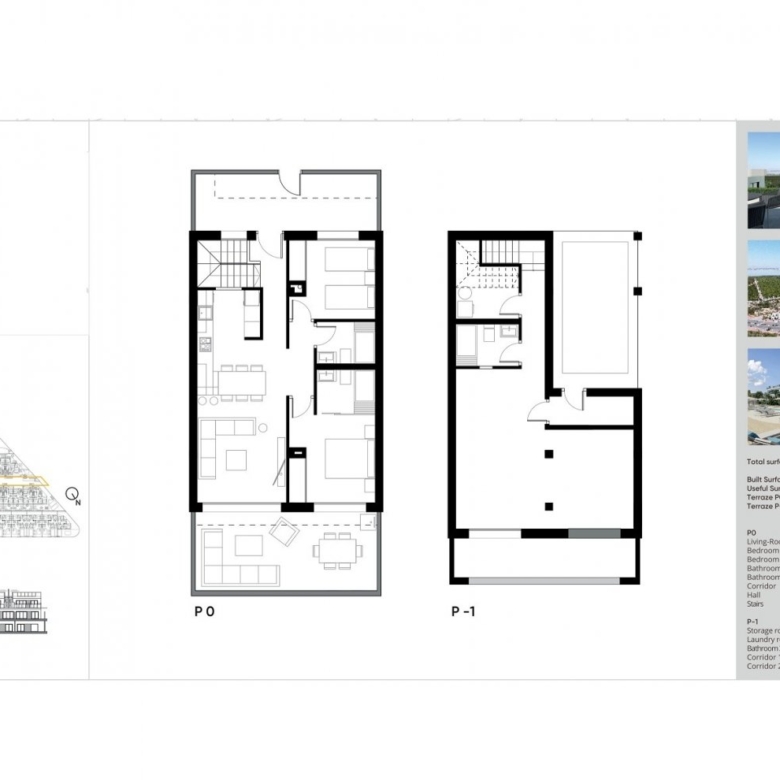
Slaapkamers2
Badkamers2
m²75
N6848
Beschrijving
NIEUW WOONCOMPLEX IN LOS BALCONES, TORREVIEJA. Dit nieuwbouwcomplex met halfvrijstaande villa's en bungalows is gelegen in Los Balcones, met uitzicht op het roze meer. De bungalows op de bovenste verdieping beschikken over twee slaapkamers, twee badkamers, een open keuken met een ruime woonkamer, inbouwkasten, een terras, een privésolarium en een ondergrondse parkeergarage. Deze nieuwe, exclusieve residentie biedt grote gemeenschappelijke ruimtes, tuinen, een tuinfitnessruimte, een speeltuin en twee grote gemeenschappelijke zwembaden – een voor volwassenen en een voor kinderen. Los Balcones is een klein stadje in het zuiden van Torrevieja. Torrevieja is een Spaanse stad in de provincie Alicante, aan de Costa Blanca. De stad staat bekend om haar typische mediterrane klimaat en kustlijn. De stad heeft autovrije straten met resorts langs de zandstranden. Het Kleine Zee- en Zoutmuseum herbergt tentoonstellingen over de visserij- en zoutgeschiedenis van de stad. Binnen de stad ligt het natuurpark Lagunas de La Mata-Torrevieja met wandelpaden en twee zoutwaterlagunes, een roze en een groene. De luchthaven van Alicante ligt op 40 minuten afstand en de luchthaven van Murcia op ongeveer een uur. 950
Details
Status: Te koop
Slaapkamers2
Badkamers2
m²75
Plaats: Torrevieja
Object-ID: N6848
Kenmerken
- Gemeentelijk zwembad
- Bomen in de buurt
- Airconditioning: Af fabriek geïnstalleerd
- Aantal parkeerplaatsen: 1
- Locatie: Kust, Verstedelijking
- Omheinde woongemeenschap
- Parkeren - plaats
- Strand: 4000 meter
- Kant-en-klaar
- Tweepersoonsslaapkamers: 2
- Bruikbare oppervlakte: 65 m².
- Solarium: JA
- Terras: 91 m²
- Vlakbij het winkelcentrum
- Scholen in de buurt
- Vlakbij de bushalte
Hypotheekcalculator
* Indicatieve simulatie. Exclusief commissies, belastingen of andere bijkomende kosten. De gegevens kunnen variëren afhankelijk van het aanbod van de bank.
Vergelijkbare aanbiedingen
Ciudad del Deporte
- Bedden: 2
- Badkamers: 2
- ID: SP1585
- Penthouse
Ciudad del Deporte
- Bedden: 3
- Badkamers: 2
- ID: SP1584
- Appartement
Ciudad del Deporte
- Bedden: 2
- Badkamers: 2
- ID: SP1583
- Appartement


















