- 760,000 €
Финестрат, Аликанте
Сад Кампана
Спальни3
Ванные комнаты3
м²198
N7628
Описание
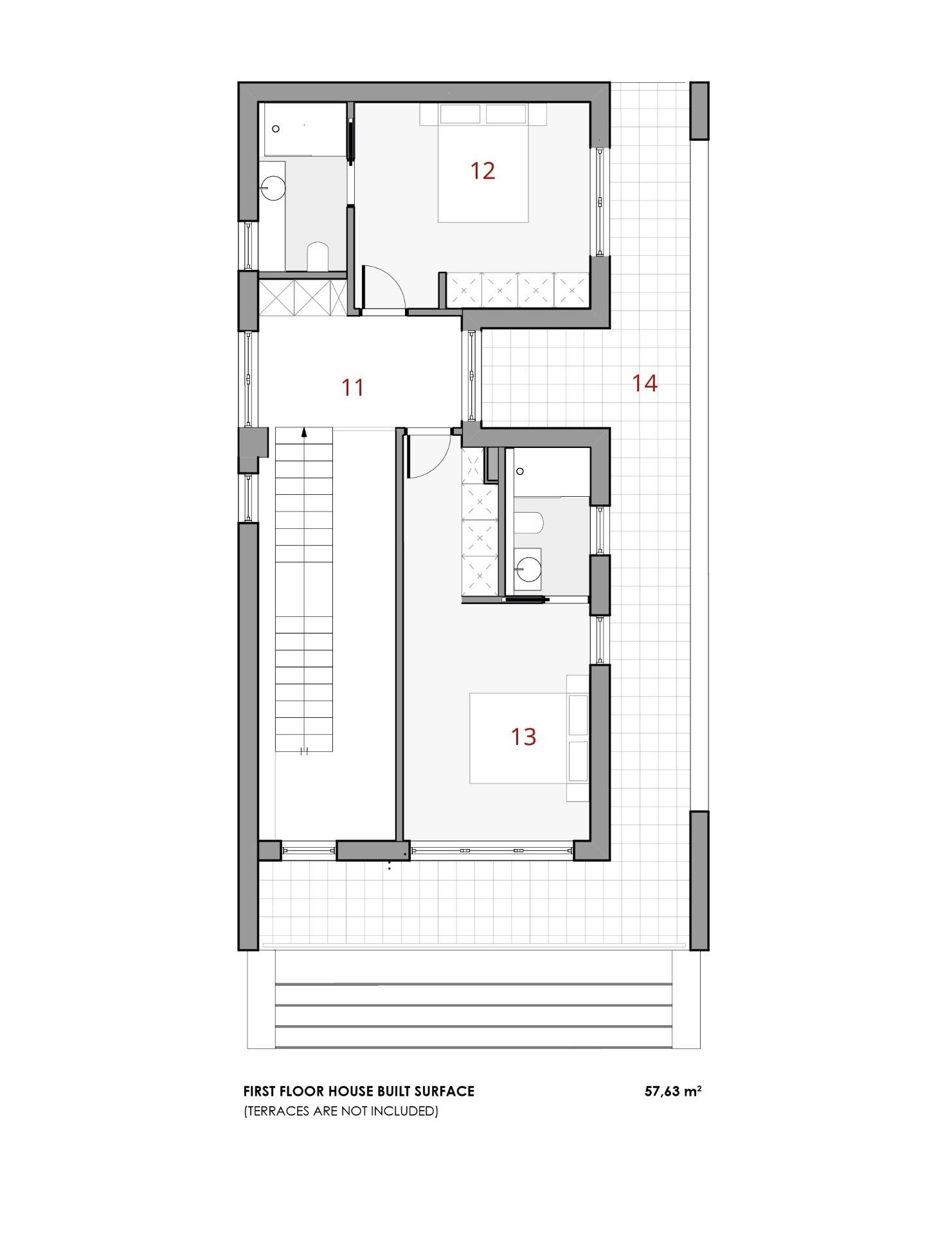
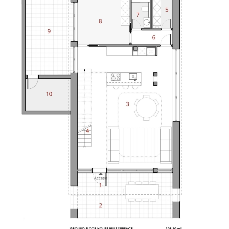
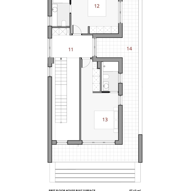
Виллы PRIMARY MARKET в Финестрате. Современные виллы в Финестрате. Эти виллы включают 3 спальни и 3 ванные комнаты, кухню открытой планировки с обеденной зоной, террасу с потрясающим видом на Бенидорм, частный сад с бассейном и парковочное место. Вилла спроектирована как пешеходное пространство с внутренними и внешними дорожками, обеспечивающими независимый доступ на каждый этаж. Такой дизайн предлагает разнообразные ракурсы архитектурного комплекса и его окрестностей, с морем и горным хребтом Сьерра-Кортина в качестве живописного фона. Главный вход на виллу расположен в нижней части участка, с просторной парковкой на две машины. Водный элемент с шезлонгами ведет на первый этаж, характеризующийся широкими стенами, отделанными кирпичной кладкой. Терраса плавно переходит из гостиной, что стало возможным благодаря большому складному окну. Деревянные ставни на кирпичных стенах обеспечивают частично крытую открытую площадку для дополнительного комфорта. Бассейн бирюзового цвета с облицовкой из керамогранита примыкает к дорожке из нескользящей керамогранитной плитки с отделкой под дерево. На территории также есть зона для барбекю, которую можно обустроить по своему вкусу, с доступом с асфальтированной площадки через естественный ландшафт. Финестрат расположен в районе Марина Байша на побережье Коста-Бланка, недалеко от соседнего Бенидорма и примерно в 40 километрах от Аликанте и его международного аэропорта. Деревня расположена на склонах горы Пуиг Кампана и предлагает прекрасные виды на горы, побережье и Средиземное море. Бенидорм находится всего в пяти минутах езды от объекта и предлагает все необходимые услуги, включая магазины, бары, рестораны, супермаркеты, банки, аптеки и несколько частных международных школ. 950
Подробности
Статус: Продается
Тип: Вилла
Спальни3
Ванные комнаты3
м²198
Город: Финестрат
Идентификатор объекта: N7628
Характеристики
Ипотечный калькулятор
* Ориентировочные результаты моделирования. Не включают комиссии, налоги и другие дополнительные расходы. Данные могут отличаться в зависимости от предложения банка.
Похожие предложения
Балкон де Финестрат
- Кровати: 2
- Ванные комнаты: 2
- ID: N8929
- Квартира
Гольф-клуб Ла-Серена
- Кровати: 3
- Ванные комнаты: 2
- ID: N9489
- Квартира
поселок Санта-Розалия
- Кровати: 2
- Ванные комнаты: 2
- ID: N9727












